Capannone in vendita

Trieste, Via Norma Cossetto - Chiarbola Campanelle
€ 250.000
Prezzo aggiornato
7 locali 7 locali
328 Mq 328 Mq
4 bagni 4 bagni

Capannone in vendita

Trieste, Via Norma Cossetto - Chiarbola Campanelle

Descrizione annuncio

VIA BAIAMONTI: A brevissima distanza dalla Nuova Sopraelevata, dalla zona industriale e dal confine, proponiamo un capannone con accesso carraio, ottime altezze interne e possibilità di ampliamento.

DESCRIZIONE:

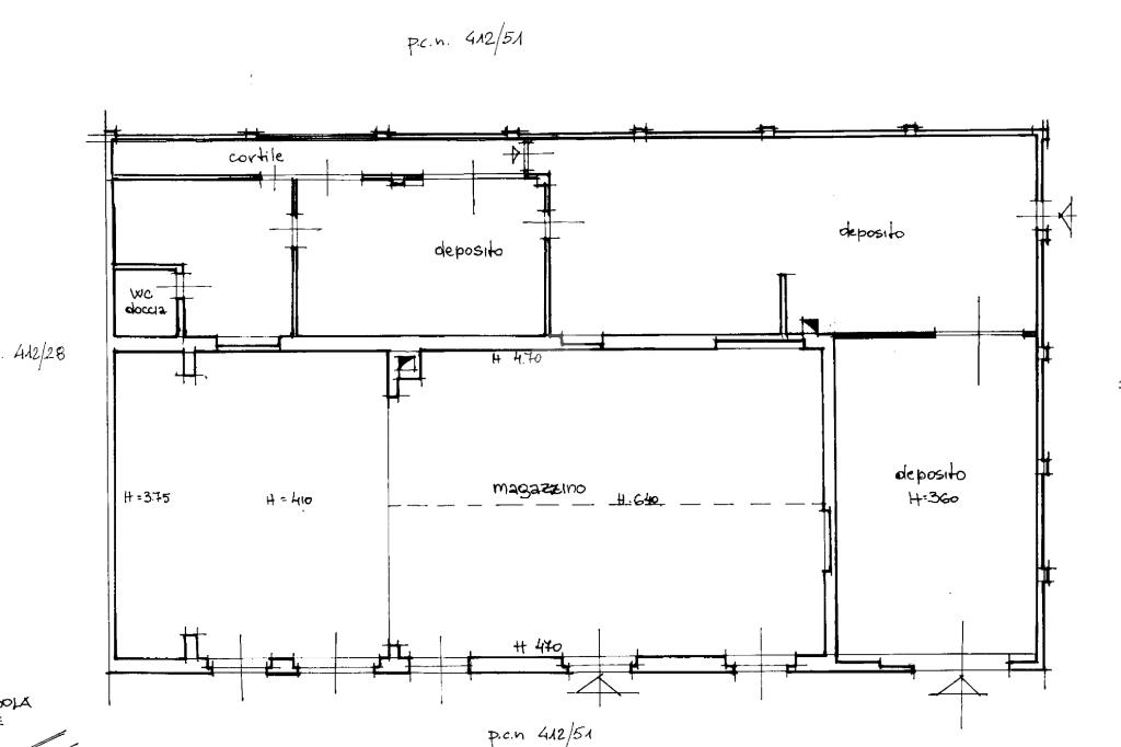
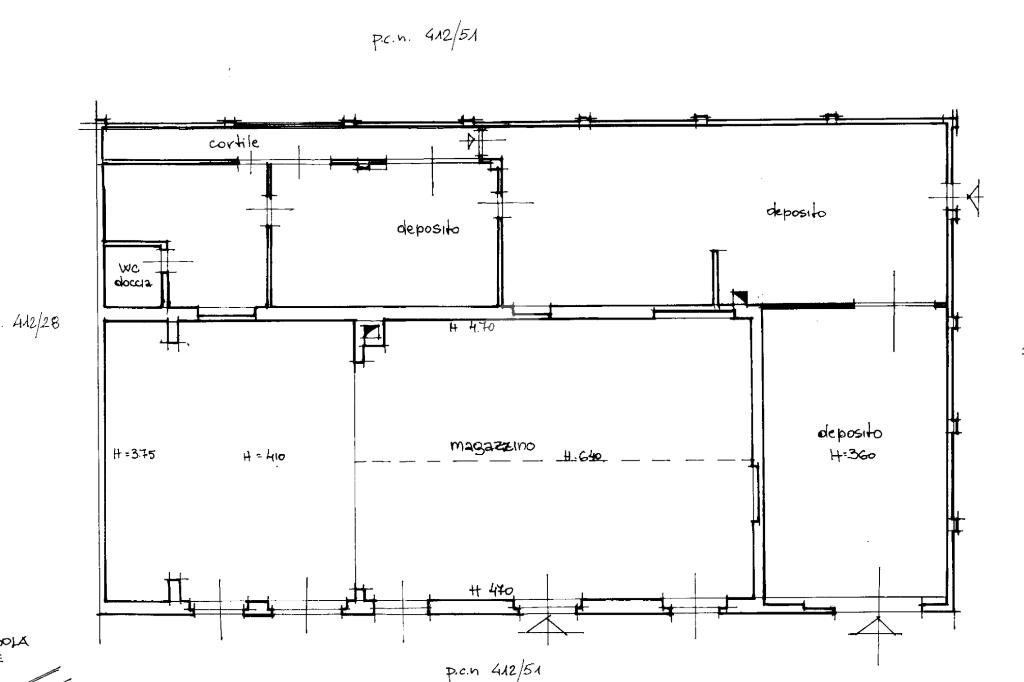
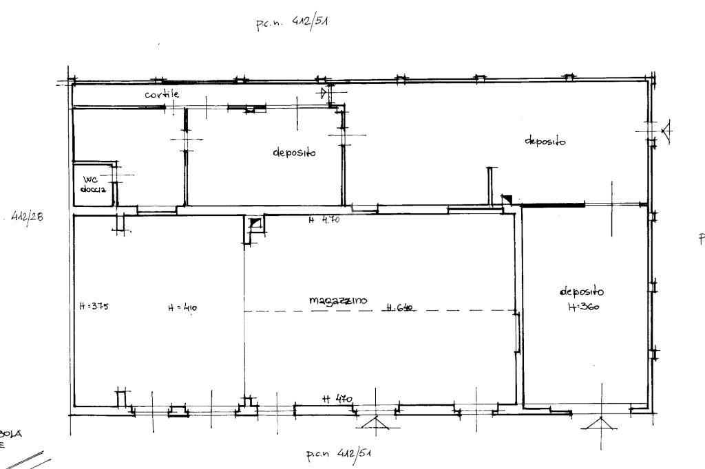
- Metratura totale: 328mq

- Altezza minima: 3.60mt

- Altezza massima: 6.40mt

Il lotto si sviluppa su due livelli e tre accessi dalla strada.

Una porzione del capannone è formata da tre magazzini: il primo al suo interno ha un ambiente ad uso ufficio e un locale bagno. Il secondo ed il terzo hanno degli accessi indipendenti, sono disposti su due livelli e collegati da una scala interna ed hanno al loro interno due bagni.

Il resto del lotto è formato da un'area di deposito che può essere utilizzata in parte come parcheggio per le vetture e in parte come area di stoccaggio merci. Sempre in questa zona è situato un bagno.

La struttura esterna risulta essere in condizione discrete, la copertura del tetto dei magazzini è in pannelli di lamiera e non presenta infiltrazioni evidenti.

PARTICOLARITA':

La zona è densamente abitata, infatti questo lotto ben si dispone ad essere trasformato in autorimessa vista la mancanza di parcheggi o eventualmente in immobili residenziali o commerciali.

E' stato già predisposto un progetto di massima, dall'attuale proprietà, per la trasformazione in autorimessa composta da 12 box/posti auto.

CONTESTO:

L'area in cui sorge il capannone è in un contesto curato e adiacente alla zona industriale e anche al centro cittadino. Il lotto è situato tra la Via Svevo e la Via Baiamonti.

CONTATTI E INFORMAZIONI

Per maggiori informazioni o per fissare un appuntamento: 040.9859381 o 3925921224 anche su whatsapp

Studio Industriale Trieste Srl - Affiliato Tecnocasa Immobili per l'Impresa
Offriamo consulenze personalizzate e valutazioni gratuite.

Via Marco Tullio Cicerone 8B, Trieste

Mostra tutto

Nelle vicinanze

Trasporto pubblico Trasporto pubblico
Trieste Aquilinia
Trieste Aquilinia
2,3 Km
Trieste Campo Marzio Smistamento
Trieste Campo Marzio Smistamento
2,5 Km
Piazza Oberdan
Piazza Oberdan
2,8 Km
Trasporto pubblico
100 m
Via Svevo
Via Svevo
460 m
Ricariche auto elettriche Ricariche auto elettriche
Eneldrive Carpineto
770 m
Eneldrive Ospedale Maggiore Di Trieste
2,3 Km
EnelDrive Granatieri
2,5 Km
Eneldrive Molo Sartorio
2,7 Km
Eneldrive Comune Di Trieste - Consigli Circoscrizionali
2,8 Km
Scuole Scuole
Scuola Materna Comunale Giorgio Pollitzer
390 m
Scuola Primaria Statale San Giusto martire
390 m
Scuola Primaria e dell'Infanzia Statale Biagio Marin
430 m
Scuola Secondaria Statale di Primo Grado Italo Svevo - Scuola Elemantare Statale Domenico Lovisato
510 m
Dipartimento Universitario Clinico di Scienze Mediche Chirurgiche e della Salute
710 m
Farmacia Farmacia
Baiamonti
90 m
Al San Lorenzo
620 m
Farmacia Serdoz
790 m
Farmacia Alla Maddalena
1,2 Km
Farmacia All'alabarda
1,4 Km
Ospedali Ospedali
IRCCS Materno Infantile Burlo Garofolo
670 m
Sanatorio Triestino
1,8 Km
Ospedale Maggiore
2,2 Km
Supermercati Supermercati
Supermercati
270 m
D Più Discount
620 m
Ipercoop
660 m
Despar
720 m
Lidl
750 m
Negozi Negozi
CRAI supermercati la beccheria
130 m
Negozi
630 m
Piazza Italia
710 m
Verh
1,5 Km
Old Company
1,5 Km
Bar Bar
Panificio-Caffè Viezzoli
140 m
Gelateria Nicola
270 m
Bar Movida
910 m
Osteria al Bivio
1,1 Km
Bar Esso
1,1 Km
Ristoranti Ristoranti
Il Mondo della Pizza
40 m
Trattoria La rosa dei Venti
380 m
Osteria De Valle
400 m
Trattoria Osteria alle Vecchie Glorie
420 m
Trattoria Bella Trieste
530 m
Mostra tutto

Caratteristiche

Rif.:
61154400
Piano:
Terra di 2
Totale piani:
2
Box:
1
Posti auto:
2
Condizionamento:
Assente
Mostra tutto
Prezzo Prezzo
€ 250.000
Rata mutuo Rata mutuo
€ 1.178 / mese
Spese annue Spese annue
€ 0
Proponi il tuo prezzoProponi il tuo prezzo

Classe Energetica

Questo immobile è esente da classe energetica
Anno di costruzione:
1952
Riscaldamento:
Assente

Prezzo ridotto di €1 (17%%)

Ti interessa visionare l'immobile?

Fissa un appuntamento  Fissa un appuntamento

Richiedi informazioni

Clicca su Leggi per aprire l'informativa
* Questi campi sono obbligatori

Calcola il tuo mutuo

Semplice e senza impegno
Anticipo

( % )
Mutuo

( % )

pochi semplici passi

inserisci i tuoi dati
Questionario completato
Grazie per aver richiesto un appuntamento senza impegno con un nostro Consulente del Credito e Assicurativo.

Hai inserito correttamente tutti i dati necessari e a breve riceverai una e-mail con un link da convalidare per inviare i tuoi dati.
Affiliato
Studio Industriale Trieste Srl
Via Marco Tullio Cicerone, 8/B 34133 Trieste (TS)

Il nostro staff


  • Andrea Doz
    Collaboratore

  • Vittorio Longo
    Affiliato

  • Erik Solinas
    Collaboratore

  • Rebecca Santangelo
    Coordinatrice
Via Marco Tullio Cicerone, 8/B 34133 Trieste (TS)
Zona: Trieste Centro-Semi-Centro-Altipiano-Duino-Aurisina
Mostra su mappa
Orari: 9:00-13:00 / 15:00-19:00
Affiliato
Studio Industriale Trieste Srl
Via Marco Tullio Cicerone, 8/B 34133 Trieste (TS)

2026 Tecnocasa Franchising S.p.A. - P. IVA 08365160152 - Via Monte Bianco 60/A 20089 Rozzano (MI). Ogni agenzia ha un proprio titolare ed è autonoma. Privacy policy | Policy utilizzo | Cookie policy