Negozio in affitto

Trieste, Via Dell'Istria - Chiarbola Campanelle
€ 1.100 / mese
Prezzo aggiornato
2 locali 2 locali
73 Mq 73 Mq
1 bagno 1 bagno

Negozio in affitto

Trieste, Via Dell'Istria - Chiarbola Campanelle

Descrizione annuncio

COSA SAPERE DELL'IMMOBILE

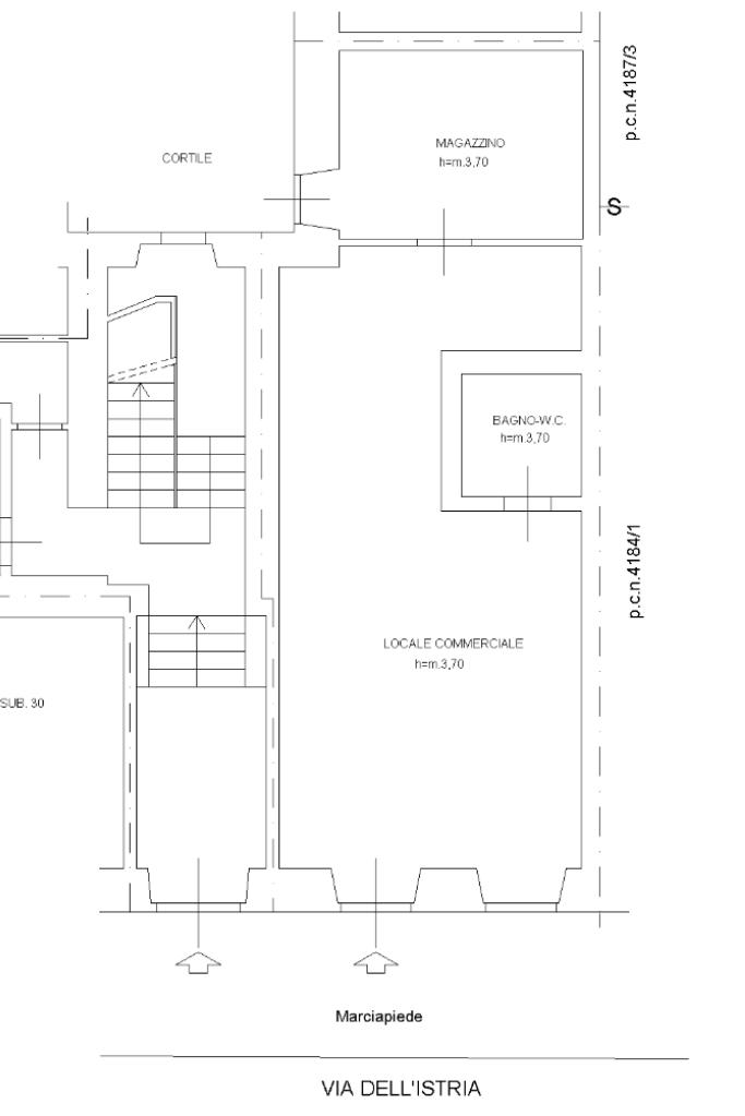
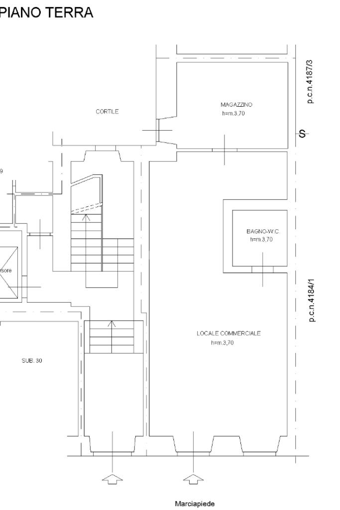
Locale commerciale in locazione - 73 mq - Via dell'Istria, 16 Trieste (TS)

DESCRIZIONE E PARTICOLARITA'

Locale commerciale composto da un ampio vano principale affacciato su Via dell'Istria, seguito poi da un servizio igienico, un disimpegno, un vano magazzino ed un'ulteriore ambiente utilizzabile come ufficio, laboratorio o zona deposito.

L'immobile si presenta libero e adatto a molteplici tipologie di attività, come studi professionali, servizi o vendita al dettaglio. Con due vetrine fronte strada, il locale risulta luminoso e fortemente visibile durante tutto il giorno trovandosi in una zona molto trafficata.

UBICAZIONE E CONTESTO

Il locale commerciale proposto in locazione è situato in Via Dell'Istria, strada fortemente trafficata del rione di San Giacomo, uno dei più vivaci della città. Nelle immediate vicinanze possiamo trovare numerose attività, come bar, negozi di vendita al dettaglio e studi professionali. L'immobile si trova a pochi minuti di macchina dal centro di Trieste, risultando facilmente raggiungibile anche attraverso i numerosi mezzi di pubblici.

CONTATTI E INFORMAZIONI

Per maggiori informazioni o per fissare un appuntamento: 040 9932650.

Studio Industriale Trieste Srl - Affiliato Tecnocasa Immobili per l'Impresa

Siamo specializzati nella gestione, compravendita e locazione di immobili commerciali e industriali. Offriamo consulenze personalizzate e valutazioni gratuite.

Le nostre sedi:

Via Marco Tullio Cicerone 8B, Trieste

Via Flavia 24, Trieste - Zona Industriale Est

Mostra tutto

Nelle vicinanze

Trasporto pubblico Trasporto pubblico
Trieste Campo Marzio Smistamento
Trieste Campo Marzio Smistamento
2,0 Km
stazione di Trieste Centrale
stazione di Trieste Centrale
2,7 Km
Piazza Oberdan
Piazza Oberdan
2,2 Km
Piazza Casali
Piazza Casali
2,5 Km
Trasporto pubblico
150 m
Ricariche auto elettriche Ricariche auto elettriche
Eneldrive Carpineto
1,3 Km
Eneldrive Ospedale Maggiore Di Trieste
1,7 Km
EnelDrive Granatieri
1,9 Km
Eneldrive Molo Sartorio
2,2 Km
Eneldrive Comune Di Trieste - Consigli Circoscrizionali
2,5 Km
Scuole Scuole
Scuola Primaria Statale San Giusto martire
230 m
Oratorio Maria Ausiliatrice
330 m
Scuola media statale Antonio Bergamas
430 m
Scuola Secondaria Statale di Primo Grado Italo Svevo - Scuola Elemantare Statale Domenico Lovisato
490 m
Scuola primaria Scipio Slataper
580 m
Farmacia Farmacia
Farmacia Alla Maddalena
610 m
Baiamonti
660 m
Farmacia All'alabarda
770 m
Farmacia San Marco S.N.C.
870 m
Farmacia Rubino
940 m
Ospedali Ospedali
IRCCS Materno Infantile Burlo Garofolo
180 m
Sanatorio Triestino
1,4 Km
Ospedale Maggiore
1,6 Km
Supermercati Supermercati
Ipercoop
180 m
Lidl
310 m
Eurospar
340 m
Supermercati
440 m
Maxì
620 m
Negozi Negozi
Piazza Italia
190 m
Negozi
540 m
CRAI supermercati la beccheria
620 m
Verh
860 m
Old Company
900 m
Bar Bar
Bar Movida
310 m
Gelateria Nicola
660 m
Panificio-Caffè Viezzoli
680 m
Bar Esso
740 m
Bar Wayra
950 m
Ristoranti Ristoranti
Birreria Paulaner
170 m
Trattoria La rosa dei Venti
420 m
Il Mondo della Pizza
570 m
Casa del Popolo
620 m
Trattoria Osteria alle Vecchie Glorie
660 m
Mostra tutto

Caratteristiche

Rif.:
61116502
Piano:
Terra di 4
Totale piani:
4
Condizionamento:
Autonomo
Ascensore:
No
Riscaldamento:
Autonomo
Mostra tutto
Prezzo Prezzo
€ 1.100 / mese

Classe Energetica

B
B
B
B
B
B
B
B
B
EP globale non rinnovabile:
341.95 kW h/m² anno
EP globale rinnovabile:
147.63 kW h/m² anno
EP invernale del fabbricato:
EP estiva del fabbricato:
Anno di costruzione:
1900
Riscaldamento:
Autonomo
Tipo impianto:
Ad aria
Tipo alimentazione:
Aria

Prezzo ridotto di €1 (19%%)

Ti interessa visionare l'immobile?

Fissa un appuntamento  Fissa un appuntamento

Richiedi informazioni

Clicca su Leggi per aprire l'informativa
* Questi campi sono obbligatori
Affiliato
Studio Industriale Trieste Srl
Via Marco Tullio Cicerone, 8/B 34133 Trieste (TS)

Il nostro staff


  • Andrea Doz
    Collaboratore

  • Elias Fratnik
    Collaboratore

  • Vittorio Longo
    Affiliato
Via Marco Tullio Cicerone, 8/B 34133 Trieste (TS)
Zona: Trieste Centro-Semi-Centro-Altipiano-Duino-Aurisina
Mostra su mappa
Orari: 9:00-13:00 / 15:00-19:00
Affiliato
Studio Industriale Trieste Srl
Via Marco Tullio Cicerone, 8/B 34133 Trieste (TS)

2025 Tecnocasa Franchising S.p.A. - P. IVA 08365160152 - Via Monte Bianco 60/A 20089 Rozzano (MI). Ogni agenzia ha un proprio titolare ed è autonoma. Privacy policy | Policy utilizzo | Cookie policy