Negozio in vendita

Trieste, Via Lionello Stock - Roiano
€ 179.500
186 Mq 186 Mq
1 bagno 1 bagno

Negozio in vendita

Trieste, Via Lionello Stock - Roiano

Descrizione annuncio

L’immobile che proponiamo in vendita si trova all’interno del comprensorio Stock nel cuore del quartiere di Roiano.

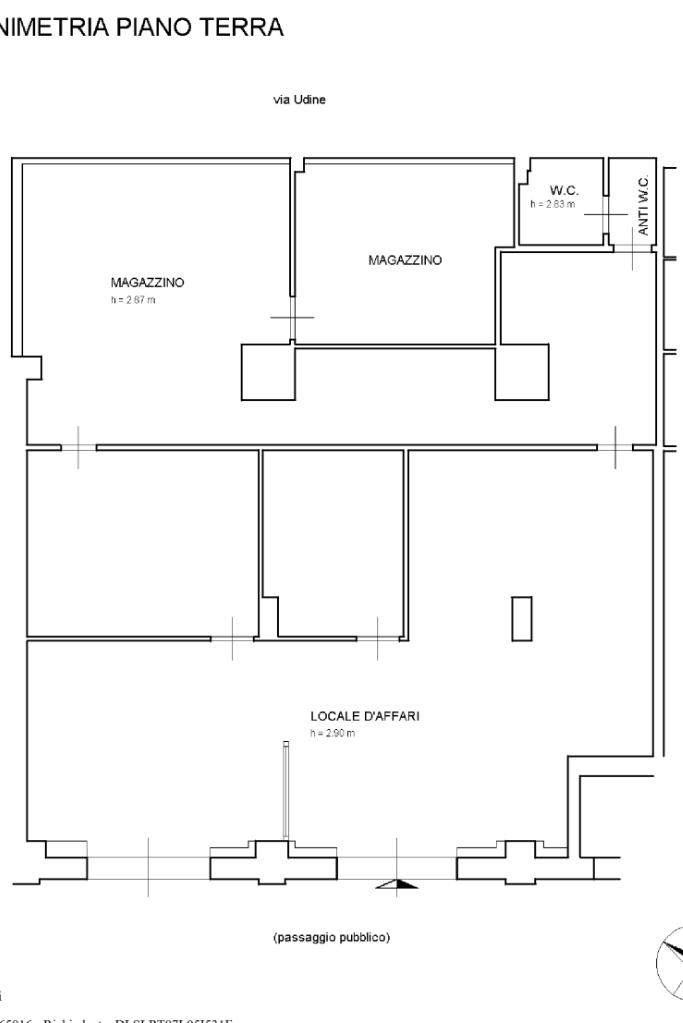
Accedendo all’immobile troviamo una zona principale di circa 105 m² costituita da un vano open space e due ulteriori ambienti. Nella parte retrostante troviamo un’ampia area di circa 80 m² destinata a zona di deposito.

Completa la proprietà un servizio igienico dotato di antibagno.

Internamente l’immobile necessita di essere ristrutturato per poter essere adattato alle esigenze del futuro proprietario.

Il valore di vendita richiesto è di €179.500,00 (EURO CENTOSETTANTANOVEMILACINQUECENTO/00) OLTRE IVA.

L’immobile si trova all’interno del comprensorio della ex Fabbrica Stock dove sono presenti numerose attività di vario genere. Il quartiere di Roiano, densamente popolato e situato a breve distanza dal centro cittadino è stato oggetto di recenti opere pubbliche: a breve distanza dall’immobile è stata da poco completata la piazza di Roiano, un moderno spazio pubblico. Il progetto ha portato la creazione di un parcheggio, un asilo nido, un’area ricreativa e uno spazio di sgambamento per cani.

Il locale è comodamente raggiungibile grazie alla presenza di mezzi di trasporto pubblico nelle immediate vicinanze.

CONTATTI E INFORMAZIONI


Per maggiori informazioni o per fissare un appuntamento: 040 9859381.
Lo Studio Industriale Trieste Srl affiliato Tecnocasa Immobili per l'Impresa . Siamo disposizione per valutazioni e consulenze per qualsiasi tipologia di immobile.

Presenti sul territorio con due sedi ci trovate:

- Via Marco Tullio Cicerone 8B

- Via Flavia, 24 - Zona industriale Est

Mostra tutto

Nelle vicinanze

Trasporto pubblico Trasporto pubblico
stazione di Trieste Centrale
stazione di Trieste Centrale
830 m
Romagna
Romagna
760 m
Sant’Anastasio
Sant’Anastasio
800 m
Trasporto pubblico
50 m
Piazza tra i Rivi
Piazza tra i Rivi
150 m
Ricariche auto elettriche Ricariche auto elettriche
Eneldrive Ginestre
30 m
EnelDrive Granatieri
1,8 Km
Eneldrive Ospedale Maggiore Di Trieste
1,9 Km
Eneldrive verso Opicina
2,2 Km
Eneldrive Molo Sartorio
2,2 Km
Scuole Scuole
Scuola Secondaria di I Grado Guido Brunner
80 m
Scuola elementare Bazoviški junaki - Scuola media Fran Erjavec - Glasbena Matica
120 m
Scuola Primaria Emo Tarabocchia
130 m
Scuola Primaria Umberto Saba
390 m
Scuola Secondaria di Primo Grado Pietro Addobbati
420 m
Farmacia Farmacia
Farmacia Sponza
60 m
All'aquila Imperiale
430 m
Farmacia
530 m
Parafarmacia Alla Stazione
850 m
Farmacia alla Croce Azzurra
930 m
Ospedali Ospedali
Ospedale Maggiore
2,0 Km
Sanatorio Triestino
2,6 Km
Supermercati Supermercati
Pam
30 m
Conad City
200 m
Coop
220 m
D Più Discount
250 m
Supermercati
580 m
Negozi Negozi
Jerian
80 m
Dagri
590 m
Despar
800 m
Cadenaro
1,1 Km
Negozi
1,1 Km
Bar Bar
Il Mio Bar
80 m
Caffè alla Stazione
1,0 Km
Bar Cattaruzza
1,3 Km
Bar
1,4 Km
Corner Café
1,4 Km
Ristoranti Ristoranti
Pizzeria Capri
80 m
Ristorante Zuca Baruca
270 m
Al tempo perso
270 m
Ristorante Pizzeria Spaccanapoli
660 m
La pironada
680 m
Mostra tutto

Caratteristiche

Rif.:
61087442
Piano:
Terra di 4
Totale piani:
4
Condizionamento:
Assente
Ascensore:
No
Riscaldamento:
Assente
Mostra tutto
Prezzo Prezzo
€ 179.500
Rata mutuo Rata mutuo
€ 847 / mese
Proponi il tuo prezzoProponi il tuo prezzo

Altre caratteristiche

Descrizione dei locali
Bagno Cieco

Classe Energetica

G
G
G
G
G
G
G
G
G
EP globale non rinnovabile:
111.00 kW h/m² anno
EP globale rinnovabile:
111.00 kW h/m² anno
EP invernale del fabbricato:
EP estiva del fabbricato:
Anno di costruzione:
1900
Riscaldamento:
Assente

Ti interessa visionare l'immobile?

Fissa un appuntamento  Fissa un appuntamento

Richiedi informazioni

Clicca su Leggi per aprire l'informativa
* Questi campi sono obbligatori

Calcola il tuo mutuo

Semplice e senza impegno
Anticipo

( % )
Mutuo

( % )

pochi semplici passi

inserisci i tuoi dati
Questionario completato
Grazie per aver richiesto un appuntamento senza impegno con un nostro Consulente del Credito e Assicurativo.

Hai inserito correttamente tutti i dati necessari e a breve riceverai una e-mail con un link da convalidare per inviare i tuoi dati.
Affiliato
Studio Industriale Trieste Srl
Via Marco Tullio Cicerone, 8/B 34133 Trieste (TS)

Il nostro staff


  • Andrea Doz
    Collaboratore

  • Elias Fratnik
    Collaboratore

  • Vittorio Longo
    Affiliato
Via Marco Tullio Cicerone, 8/B 34133 Trieste (TS)
Zona: Trieste Centro-Semi-Centro-Altipiano-Duino-Aurisina
Mostra su mappa
Orari: 9:00-13:00 / 15:00-19:00
Affiliato
Studio Industriale Trieste Srl
Via Marco Tullio Cicerone, 8/B 34133 Trieste (TS)

2025 Tecnocasa Franchising S.p.A. - P. IVA 08365160152 - Via Monte Bianco 60/A 20089 Rozzano (MI). Ogni agenzia ha un proprio titolare ed è autonoma. Privacy policy | Policy utilizzo | Cookie policy