Ufficio in affitto

Trieste, Via Fabio Severo - Fabio Severo Università
€ 900 / mese
4 locali 4 locali
80 Mq 80 Mq
1 bagno 1 bagno

Ufficio in affitto

Trieste, Via Fabio Severo - Fabio Severo Università

Descrizione annuncio

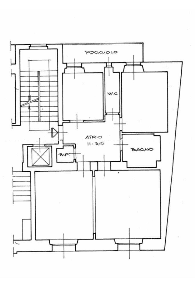
UFFICIO IN AFFITTO - VIA FABIO SEVERO 86

DESCRIZIONE

In una delle zone più servite e strategiche di Trieste, proponiamo in affitto luminoso ufficio situato in Via Fabio Severo 86, a pochi minuti dal centro città e dalle principali sedi universitarie e istituzionali.

L’immobile si trova all' ammezzato di un elegante stabile dotato di ascensore e si estende su una superficie di circa 128mq.
È composto da un ingresso, tre stanze ad uso ufficio, un bagno finestrato e un comodo ripostiglio/archivio.

Grazie alle due finestre fronte strada, ed un balcone affacciato sulla corte interna, gli ambienti risultano particolarmente luminosi, ideali per studi professionali, società di consulenza, coworking o ambulatori privati.

CONTESTO

Strada che collega l'Università di Trieste e in centro città, Via Fabio Severo si posiziona in un zona ben collegata e servita da mezzi pubblicI e tutti i servizi essenziali a portata di mano.

CONTATTI E INFORMAZIONI

Per maggiori informazioni o per fissare un appuntamento: 040.9859381 o 3925921224 anche su whatsapp

Studio Industriale Trieste Srl - Affiliato Tecnocasa Immobili per l'Impresa
Offriamo consulenze personalizzate e valutazioni gratuite.

Via Marco Tullio Cicerone 8B, Trieste

Mostra tutto

Nelle vicinanze

Trasporto pubblico Trasporto pubblico
stazione di Trieste Centrale
stazione di Trieste Centrale
1,3 Km
Vetta Scorcola
Vetta Scorcola
850 m
Piazza Casali
Piazza Casali
860 m
Trasporto pubblico
20 m
Via Severo - Via Sottoripa
Via Severo - Via Sottoripa
240 m
Ricariche auto elettriche Ricariche auto elettriche
Eneldrive Comune Di Trieste - Consigli Circoscrizionali
770 m
Eneldrive Ospedale Maggiore Di Trieste
920 m
Eneldrive Ginestre
1,7 Km
EnelDrive Granatieri
1,7 Km
Eneldrive Molo Sartorio
2,4 Km
Scuole Scuole
Scuola Primaria Claudio Suvich
140 m
Scuola dell'Infanzia Panizon
180 m
Scuola Primaria Luigi Mauro
230 m
Scuola Primaria Paritaria Montessori San Giusto
240 m
Istituto Tecnico Industriale Statale Alessandro Volta
310 m
Farmacia Farmacia
All'Università
280 m
Farmacia All'Amazzone Trionfante
300 m
Alla Salute
590 m
Alla Minerva
720 m
Farmacia Al Centauro
810 m
Ospedali Ospedali
Ospedale Maggiore
940 m
Sanatorio Triestino
1,2 Km
IRCCS Materno Infantile Burlo Garofolo
2,4 Km
Supermercati Supermercati
CRAI
50 m
Punto Simply MARKET
210 m
naturasi
240 m
Despar
290 m
iN's
420 m
Negozi Negozi
Il Pane Quotidiano
260 m
Caddy's
440 m
OVS
540 m
Nuna Lie
540 m
Mercatino dell'usato e vintage
720 m
Bar Bar
Bar
270 m
BarDestino
280 m
Corner Café
410 m
Bar H
500 m
Bar Bianchi
560 m
Ristoranti Ristoranti
Pizzeria La Perla De Caio Trieste
140 m
Vulcania
150 m
Pizza Millenium
190 m
Mea Culpa
280 m
Trattoria Delizia
570 m
Mostra tutto

Caratteristiche

Rif.:
61135839
Piano:
Ammezzato di 5 con ascensore
Totale piani:
5
Balconi:
1
Condizionamento:
Autonomo
Ascensore:
Mostra tutto
Prezzo Prezzo
€ 900 / mese
Spese annue Spese annue
€ 800

Classe Energetica

G
G
G
G
G
G
G
G
G
EP globale non rinnovabile:
111.00 kW h/m² anno
EP globale rinnovabile:
111.00 kW h/m² anno
EP invernale del fabbricato:
EP estiva del fabbricato:
Anno di costruzione:
1938
Riscaldamento:
Autonomo
Tipo impianto:
A radiatori
Tipo alimentazione:
Metano

Ti interessa visionare l'immobile?

Fissa un appuntamento  Fissa un appuntamento

Richiedi informazioni

Clicca su Leggi per aprire l'informativa
* Questi campi sono obbligatori
Affiliato
Studio Industriale Trieste Srl
Via Marco Tullio Cicerone, 8/B 34133 Trieste (TS)

Il nostro staff


  • Andrea Doz
    Collaboratore

  • Vittorio Longo
    Affiliato

  • Erik Solinas
    Collaboratore

  • Rebecca Santangelo
    Coordinatrice
Via Marco Tullio Cicerone, 8/B 34133 Trieste (TS)
Zona: Trieste Centro-Semi-Centro-Altipiano-Duino-Aurisina
Mostra su mappa
Orari: 9:00-13:00 / 15:00-19:00
Affiliato
Studio Industriale Trieste Srl
Via Marco Tullio Cicerone, 8/B 34133 Trieste (TS)

2026 Tecnocasa Franchising S.p.A. - P. IVA 08365160152 - Via Monte Bianco 60/A 20089 Rozzano (MI). Ogni agenzia ha un proprio titolare ed è autonoma. Privacy policy | Policy utilizzo | Cookie policy