Ufficio in vendita

Trieste, Via Fabio Severo - Fabio Severo Università
€ 139.000
3 locali 3 locali
90 Mq 90 Mq
2 bagni 2 bagni

Ufficio in vendita

Trieste, Via Fabio Severo - Fabio Severo Università

Descrizione annuncio

VIA FABIO SEVERO 86: a pochi minuti dal centro città e dall'Università Centrale proponiamo un immobile ad uso ufficio facilmente convertibile ad uso abitativo.

DESCRIZIONE:

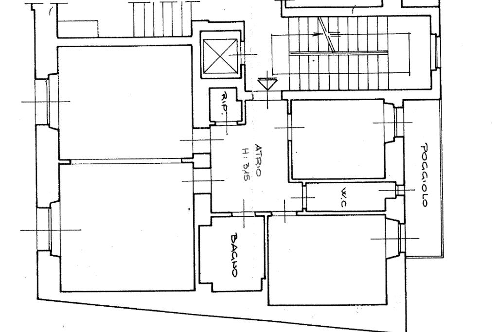
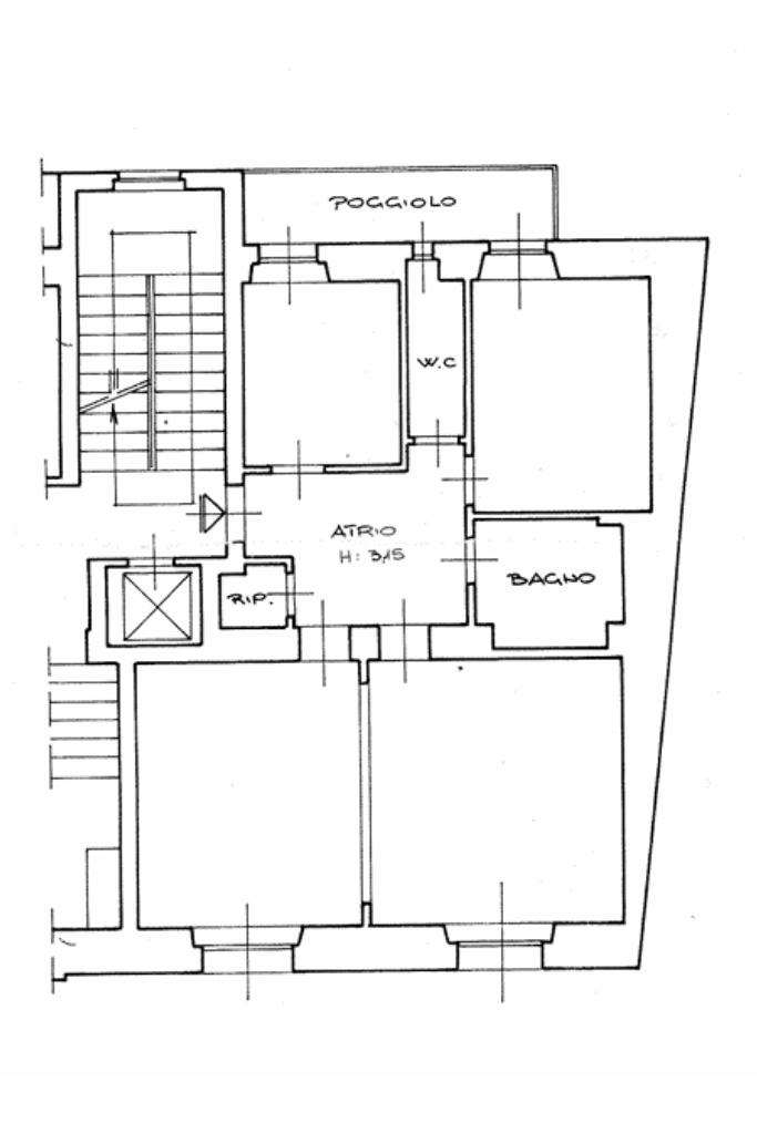
L'immobile è composto da atrio d'ingresso, quattro stanze ad uso ufficio, un bagno e wc separati, balcone ed una cantina.

Nel caso in cui l'appartamento venisse trasformato in un'abitazione, si potrebbe comporre così come segue: uno spazioso atrio d'ingresso che ci porta nei vari ambienti. Un soggiorno e salotto facilmente divisibili in due, una cucina abitabile con balcone, uno studiolo e il bagno e wc separati. Completa la proprietà una pratica cantina.

Grazie alle due finestre fronte strada, ed un balcone affacciato sulla corte interna, gli ambienti risultano particolarmente luminosi. Ideali per studi professionali, società di consulenza, coworking, ambulatori privati oppure per esser trasformato in abitazione ad uso investimento vista la grande richiesta di affitti in zona.

CONTESTO:

Strada che collega l'Università di Trieste e in centro città, Via Fabio Severo si posiziona in un zona ben servita da mezzi pubblicI e tutti i servizi essenziali a portata di mano.

PARTICOLARITA':

Il pavimento è in ottime condizioni in parquet,il riscaldmento è con caldaia a gas installata di recente. Gli infissi sono in alluminio e non devono esser sostituiti.

Gli impianti sono tutti certificati. Inoltre, è presente l'impianto di climatizzazione.

CONTATTI E INFORMAZIONI:

Per maggiori informazioni o per fissare un appuntamento: 040.9859381 o 3925921224 anche su whatsapp

Studio Industriale Trieste Srl - Affiliato Tecnocasa Immobili per l'Impresa
Offriamo consulenze personalizzate e valutazioni gratuite.

Via Marco Tullio Cicerone 8B, Trieste

Mostra tutto

Nelle vicinanze

Trasporto pubblico Trasporto pubblico
stazione di Trieste Centrale
stazione di Trieste Centrale
1,3 Km
Vetta Scorcola
Vetta Scorcola
850 m
Piazza Casali
Piazza Casali
860 m
Trasporto pubblico
20 m
Via Severo - Via Sottoripa
Via Severo - Via Sottoripa
240 m
Ricariche auto elettriche Ricariche auto elettriche
Eneldrive Comune Di Trieste - Consigli Circoscrizionali
770 m
Eneldrive Ospedale Maggiore Di Trieste
920 m
Eneldrive Ginestre
1,7 Km
EnelDrive Granatieri
1,7 Km
Eneldrive Molo Sartorio
2,4 Km
Scuole Scuole
Scuola Primaria Claudio Suvich
140 m
Scuola dell'Infanzia Panizon
180 m
Scuola Primaria Luigi Mauro
230 m
Scuola Primaria Paritaria Montessori San Giusto
240 m
Istituto Tecnico Industriale Statale Alessandro Volta
310 m
Farmacia Farmacia
All'Università
280 m
Farmacia All'Amazzone Trionfante
300 m
Alla Salute
590 m
Alla Minerva
720 m
Farmacia Al Centauro
810 m
Ospedali Ospedali
Ospedale Maggiore
940 m
Sanatorio Triestino
1,2 Km
IRCCS Materno Infantile Burlo Garofolo
2,4 Km
Supermercati Supermercati
CRAI
50 m
Punto Simply MARKET
210 m
naturasi
240 m
Despar
290 m
iN's
420 m
Negozi Negozi
Il Pane Quotidiano
260 m
Caddy's
440 m
OVS
540 m
Nuna Lie
540 m
Mercatino dell'usato e vintage
720 m
Bar Bar
Bar
270 m
BarDestino
280 m
Corner Café
410 m
Bar H
500 m
Bar Bianchi
560 m
Ristoranti Ristoranti
Pizzeria La Perla De Caio Trieste
140 m
Vulcania
150 m
Pizza Millenium
190 m
Mea Culpa
280 m
Trattoria Delizia
570 m
Mostra tutto

Caratteristiche

Rif.:
61135839
Piano:
Rialzato di 5 con ascensore
Totale piani:
5
Balconi:
1
Condizionamento:
Assente
Ascensore:
Mostra tutto
Prezzo Prezzo
€ 139.000
Rata mutuo Rata mutuo
€ 655 / mese
Spese annue Spese annue
€ 800
Proponi il tuo prezzoProponi il tuo prezzo

Classe Energetica

E
E
E
E
E
E
E
E
E
EP globale non rinnovabile:
269.99 kW h/m² anno
EP invernale del fabbricato:
EP estiva del fabbricato:
Anno di costruzione:
1938
Riscaldamento:
Autonomo
Tipo impianto:
A radiatori
Tipo alimentazione:
Metano

Ti interessa visionare l'immobile?

Fissa un appuntamento  Fissa un appuntamento

Richiedi informazioni

Clicca su Leggi per aprire l'informativa
* Questi campi sono obbligatori

Calcola il tuo mutuo

Semplice e senza impegno
Anticipo

( % )
Mutuo

( % )

pochi semplici passi

inserisci i tuoi dati
Questionario completato
Grazie per aver richiesto un appuntamento senza impegno con un nostro Consulente del Credito e Assicurativo.

Hai inserito correttamente tutti i dati necessari e a breve riceverai una e-mail con un link da convalidare per inviare i tuoi dati.
Affiliato
Studio Industriale Trieste Srl
Via Marco Tullio Cicerone, 8/B 34133 Trieste (TS)

Il nostro staff


  • Vittorio Longo
    Affiliato

  • Erik Solinas
    Collaboratore

  • Rebecca Santangelo
    Coordinatrice
Via Marco Tullio Cicerone, 8/B 34133 Trieste (TS)
Zona: Trieste Centro-Semi-Centro-Altipiano-Duino-Aurisina
Mostra su mappa
Orari: 9:00-13:00 / 15:00-19:00
Affiliato
Studio Industriale Trieste Srl
Via Marco Tullio Cicerone, 8/B 34133 Trieste (TS)

2026 Tecnocasa Franchising S.p.A. - P. IVA 08365160152 - Via Monte Bianco 60/A 20089 Rozzano (MI). Ogni agenzia ha un proprio titolare ed è autonoma. Privacy policy | Policy utilizzo | Cookie policy